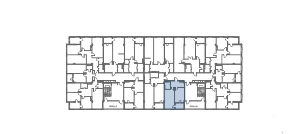
1 Otaqlı mənzil №1 (C-G)
Azad planlama
1 otaq
                            65.21 m2 
                            1 yataq otağı
                            Eksplikasiya
1. Holl.......................... 10,62 m2
2. Mətbəx................................. 17,57 m2
3. Ümumi ot.................... 24,44 m2
4. S.Q................................. 6,07 m2
5. Eyvan........................... 6,51 m2
Ümumi sahə................ 65,21 m2
