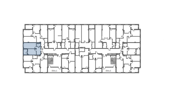
1 Otaqlı mənzil №2 (C-G)

Azad planlama
1 otaq
55.1 m2
1 yataq otağı

Eksplikasiya

1. Holl.......................... 10,14 m2

2. Mətbəx................................. 14,14 m2

3. S.Q................................. 4,00 m2 

4. Ümumi ot.................... 20,42 m2 

5. Eyvan........................... 6,40 m2

Ümumi sahə................ 55,10 m2