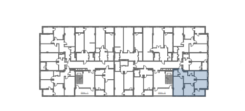
3 Otaqlı mənzil №7 (C-G)

Azad planlama
3 otaq
110.15 m2
2 yataq otağı

Eksplikasiya

1. Holl............................................. 7,77 m2

2. Dəhliz......................................... 10,01 m2

3. Mətbəx................................. 16,66 m2 

4. Zal....................................... 26,37 m2

5. S.Q 1.............................................. 4,48 m2 

6. S.Q 2............................................. 3,74 m2

7. Yataq ot. 1...................................... 16,24 m2

8. Yataq ot. 2................................ 16,02 m2

9. Eyvan......................................... 8,86 m2

Ümumi sahə................ 110,15 m2